現在選択中の項目
-
- 所在地
- 高知県
4件の物件が登録されています。
-
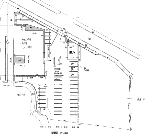
整形外科と内科が盛業中医療モール敷地内建て貸し物件!
-
- 物件名
- 福井メディコプラザ詳細
-
- 所在地
- 高知県高知市
-
- 交通/最寄り
- JR土讃線 円行寺口駅 徒歩15分
-
- 科目
- その他
-
-
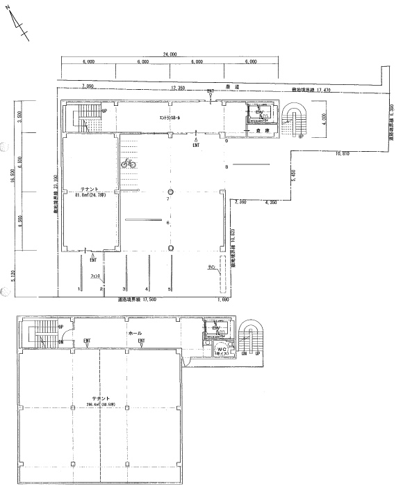
人気の医療ビル隣接地に、第2ビルを新築。人口密集地、診療科増設の相乗効果も期待!
-
- 物件名
- うしおえメディカルビル・イーア2(仮称)詳細
-
- 所在地
- 高知県高知市
-
- 交通/最寄り
- 桟橋線 桟橋通四丁目駅 徒歩10分
-
- 科目
- 内科系 耳鼻咽喉科 その他
-
-
国立高知病院の南向かいに立地!盛業中の医療ビル!
-
- 物件名
- あさくらメディカルビル (3階-2)詳細
-
- 所在地
- 高知県高知市
-
- 交通/最寄り
- JR土讃線 朝倉駅 バス3分
-
- 科目
- 皮膚科 眼科 その他
-
-
国立高知病院の南向かいに立地!盛業中の医療ビル!
-
- 物件名
- あさくらメディカルビル (3階-1)詳細
-
- 所在地
- 高知県高知市
-
- 交通/最寄り
- JR土讃線 朝倉駅 バス3分
-
- 科目
- 皮膚科 眼科 その他
-



